︎ Andreas


Information             

           

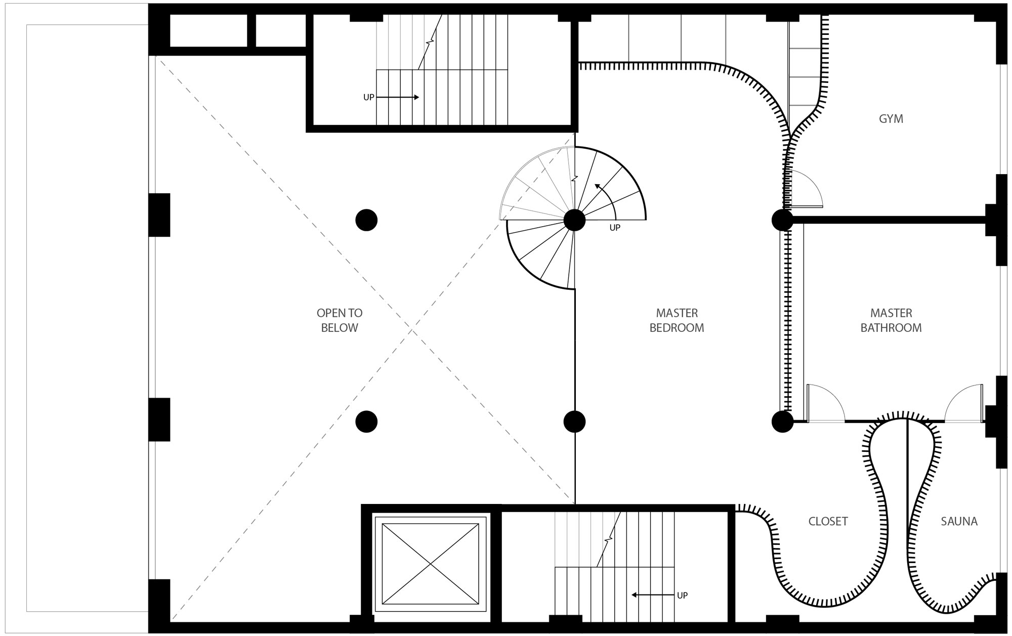
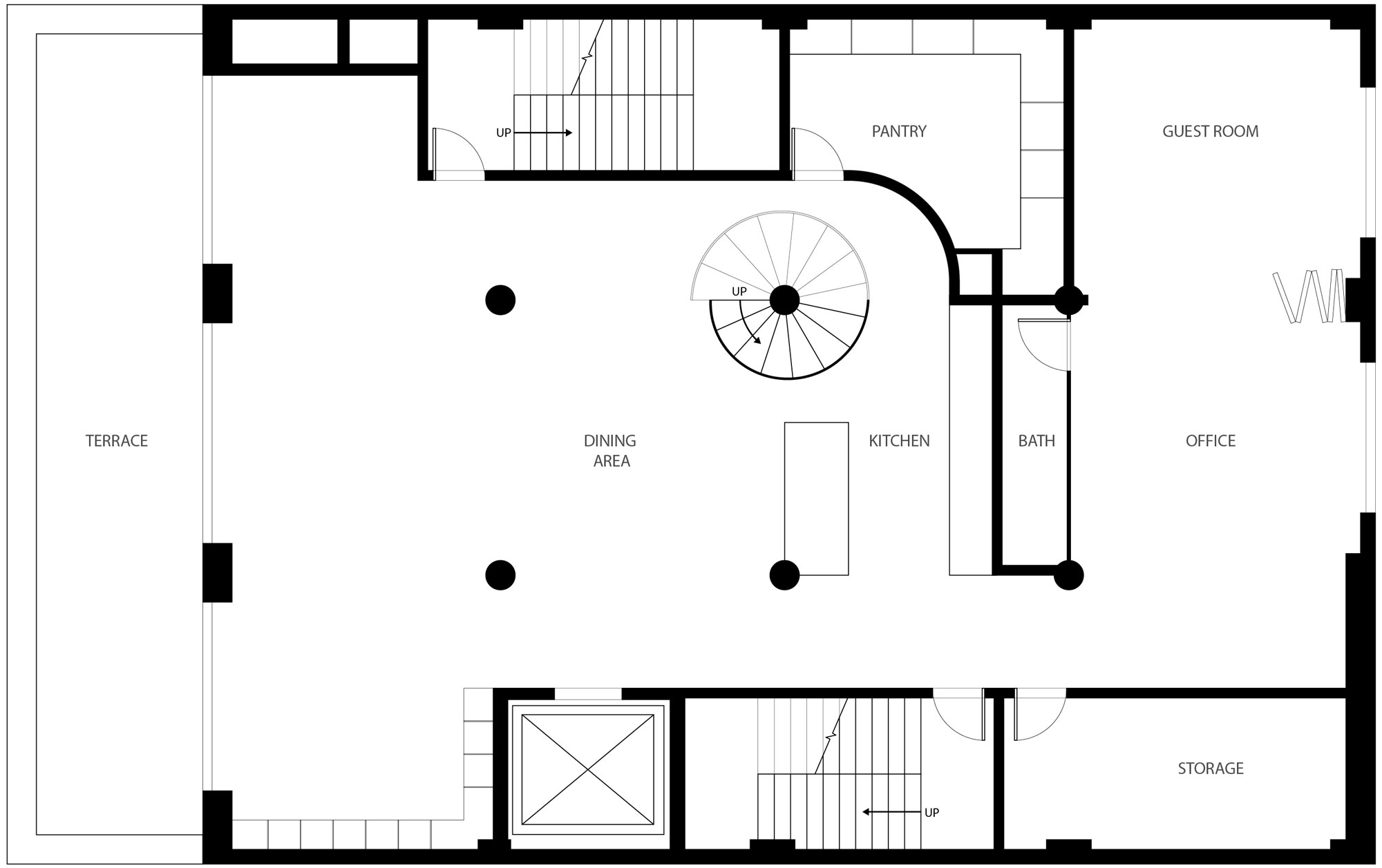
TRIBECA LOFT

Loft apartment in TriBeCa, NYC. In development.
Artwork by Viktor Miller-Gausa and Nevercrew

       Bergen ︎ 

© 2025

︎  ︎  ︎